Dự án
TỔNG QUAN DỰ ÁN
Nhà ở xã hội thuộc khu dân cư, nhà ở công nhân và dịch vụ Khu công nghiệp Tân Trường là dự án khu dân cư được Công ty Cổ phần Đầu tư Phát triển Bất động sản Nam Đô (BĐS Nam Đô) đầu tư và phát triển, với mục tiêu hình thành không gian sống đồng bộ, hiện đại và bền vững, đáp ứng nhu cầu an cư thực tế của người dân và tiềm năng đầu tư lâu dài.
Dự án được phát triển với sự đầu tư bài bản và chăm chút tỉ mỉ, từ thiết kế, vật liệu đến hệ thống tiện ích nội khu. Dự án mang đến không gian sống hiện đại, tiện nghi, sánh ngang với các khu căn hộ thương mại, khẳng định tâm huyết của chủ đầu tư trong việc nâng tầm chất lượng sống cho cư dân, dù thuộc phân khúc nhà ở xã hội.
- Tổng diện tích: 44.627 m²
- Mật độ xây dựng: ~40%
- Tổng số sản phẩm: 1.388 sản phẩm
- Quy mô: 4 tòa chung cư 20 tầng nổi và 1 tầng hầm

VỊ TRÍ DỰ ÁN
Nhà ở xã hội thuộc khu dân cư, nhà ở công nhân và dịch vụ Khu công nghiệp Tân Trường tọa lạc tại khu vực Cẩm Giàng, sở hữu vị trí thuận lợi về giao thông và kết nối khu vực. Từ dự án, cư dân có thể dễ dàng di chuyển đến các tuyến đường huyết mạch, khu dân cư hiện hữu, khu công nghiệp và các tiện ích công cộng như chợ, trường học, cơ sở y tế.

Vị trí này mang lại lợi thế lớn cho cả nhu cầu an cư lâu dài và khả năng gia tăng giá trị bất động sản trong tương lai.

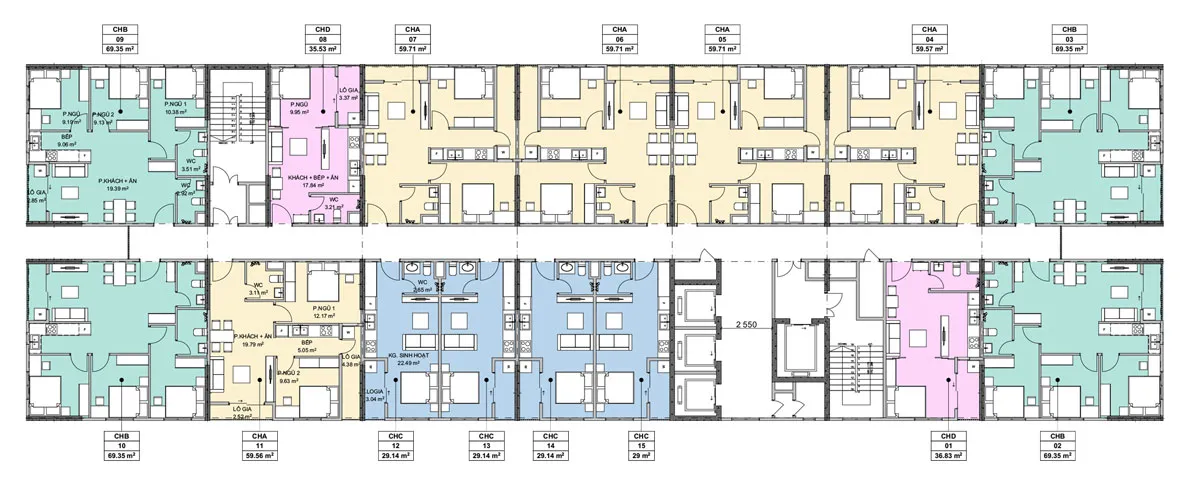
MẶT BẰNG TẦNG ĐIỂN HÌNH
Nằm dọc theo trục đường nội khu huyết mạch, khu Shophouse được thiết kế như một tuyết phố thương mại sôi động, kết nối trực tiếp với khu dân cư và khu công nghiệp liền kề. Với mặt tiền rộng từ 5-6m, chiều cao 3-5 tầng, các căn shophouse tại đây sở hữu vị trí đắc địa để phát triển cửa hàng tiện ích, siêu thị mini, cà phê, nhà thuốc, dịch vụ chăm sóc cá nhân.

CT1, CT3

CT2
HÌNH ẢNH CÁC CĂN HỘ MẪU

CH-A
![]() |
![]() |
CH-B CT1-3


CH-B CT1-3
![]() |
![]() |
CH-B CT2-4

CH-B CT2-4

CH-B CT2-4
![]() |
![]() |
CH-C CT1,3

CH-C CT1,3

CH-C CT1,3
![]() |
![]() |
CH-C CT2,4

CH-C CT2,4

CH-C CT2,4
![]() |
![]() |
CH-D
![]() |
![]() |
CH-D

CH-D
QUY HOẠCH & HẠ TẦNG
Dự án Nhà ở xã hội thuộc khu dân cư, nhà ở công nhân và dịch vụ Khu công nghiệp Tân Trường được quy hoạch theo định hướng đồng bộ – khoa học – tối ưu công năng sử dụng, bao gồm:
- Hệ thống đường giao thông nội khu rộng rãi
- Hạ tầng kỹ thuật hoàn chỉnh: điện, nước, thoát nước
- Không gian cây xanh, cảnh quan hài hòa
- Khu vực sinh hoạt cộng đồng
- An ninh, trật tự được chú trọng
Tất cả hạ tầng được đầu tư đồng bộ, tạo nền tảng vững chắc cho một khu dân cư văn minh và hiện đại.

SẢN PHẨM DỰ ÁN
Nhà ở xã hội thuộc khu dân cư, nhà ở công nhân và dịch vụ Khu công nghiệp Tân Trường cung cấp các sản phẩm đất ở / nhà ở được thiết kế phù hợp với nhu cầu sử dụng thực tế của nhiều nhóm khách hàng. Các sản phẩm có:
- Diện tích hợp lý
- Bố trí khoa học
- Phù hợp để ở hoặc đầu tư lâu dài
- Khả năng khai thác và gia tăng giá trị theo thời gian


THÔNG TIN PHÁP LÝ
Đang cập nhật nội dung!
DỊCH VỤ CAO CẤP
- Hầm đỗ xe thông minh: Tổng diện tích tầng hầm 4 toà rộng 10.400m2 đảm bảo đầy đủ nhu cầu để xe cho các cư dân Ehouse Tân Trường.
- Đơn vị quản lý vận hành: Đơn vị quản lý vận hành khu đô thị với trách nhiệm đảm bảo vệ sinh và cảnh quan của KĐT, xử lý các vấn đề điện nước, kỹ thuật và phòng cháy chữa cháy của toà nhà.
- An ninh đa lớp: Hệ thống bảo vệ khu đô thị, Lễ tân trực tầng 1, camera theo dõi 24/7, thang máy thẻ từ là 4 lớp an ninh nhằm đảm bảo sự an toàn.
- Hệ thống tiện ích cao cấp: Tiện ích phong phú tại quần thể đô thị Ehouse Tân Trường sẽ không làm bạn thất vọng: nhà trẻ, phòng khám, siêu thị mini, các tiện ích chơi giải trí phục vụ cộng đồng cư dân.
CAM KẾT CỦA CHỦ ĐẦU TƯ BĐS NAM ĐÔ
Với vai trò là chủ đầu tư, BĐS Nam Đô cam kết:
- Triển khai dự án đúng quy hoạch và tiến độ
- Minh bạch thông tin dự án
- Đảm bảo chất lượng hạ tầng và sản phẩm
- Đồng hành, hỗ trợ khách hàng trước – trong – sau giao dịch















